Zur Navigation wechseln Passare al contenuto Zum Footer wechseln

CASA SINGOLA – MILAZZO (ME)

Num. imm.
Rif-2025-957
Tipologia di immobile
Villa o Villetta
Tipo di immobile
Casa indipendente
Tipologia di commercializzazione
Vendita
Città
Milazzo
Superficie commerciale
522 m²
Locali
19
Camere da letto
5
Bagni
4
Terrazze
2
Alimentazione riscaldamento
Gas
Numero di livelli
2
Prezzo dell'immobile
290.000 €
Classe energetica
G

Dettagli dell’immobile

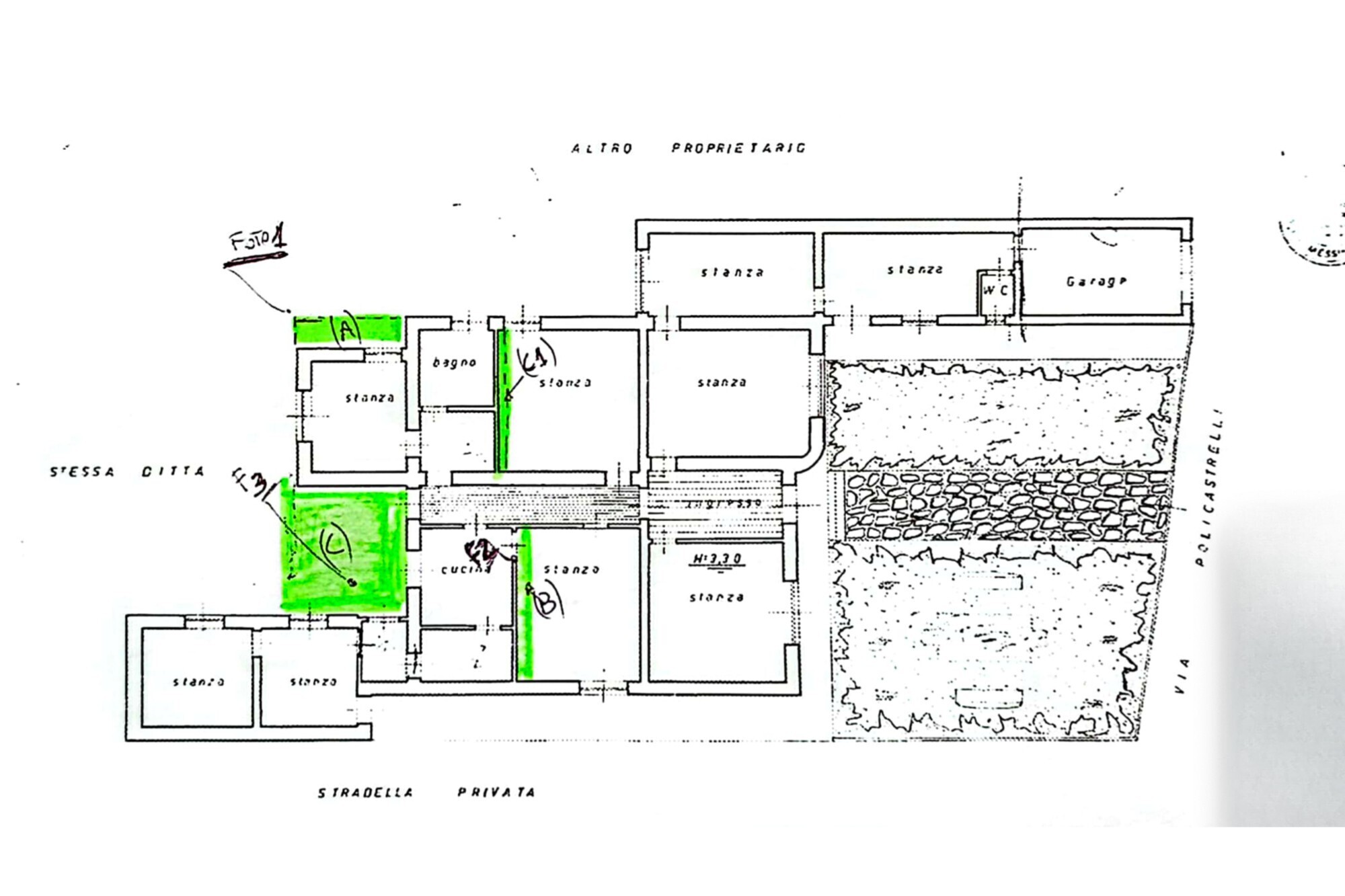
In vendita a Milazzo, una straordinaria opportunità di investimento: un terratetto plurifamiliare, costruito nel 1970 e distribuito su due livelli, con una superficie abitabile complessiva di circa 483 m² e un box auto di 15 m². Questa proprietà vanta una vista aperta e offre infinite possibilità di adattamento e personalizzazione.

La struttura è attualmente da ristrutturare, permettendo così di modellarla secondo le proprie esigenze, sia che si tratti di una suddivisione in più unità abitative o della realizzazione di strutture ricettive per la sanità o il turismo. Questa versatilità rende l'immobile adatto a numerosi sviluppi futuri.

La proprietà comprende due appartamenti in villa, ognuno con un'ampiezza di circa 250 m² per piano. Inoltre, vi è un garage di 15 m² e un ampio terreno di circa 800 m², ideale per spazi verdi o progetti di espansione.

Con un totale di 19 locali, la residenza offre 5 camere da letto confortevoli e 4 bagni, oltre a un WC per gli ospiti. Gli ambienti interni sono caratterizzati da pavimenti in gres porcellanato e marmette, garantendo qualità e durata nel tempo.

L'orientamento nord, sud, est e ovest assicura luminosità in tutto l'arco della giornata, mentre l'ampio terreno offre infinite possibilità di personalizzazione esterna.

Non perdere questa occasione unica nel cuore di Milazzo, perfetta per chi desidera cogliere un'opportunità di investimento in una zona ricca di potenziale, sia residenziale che commerciale. Contattaci per ulteriori dettagli e per organizzare una visita.

Riferimento Agente: Giuseppe Sottile
Tel. +393913666397

Genere
Residenziale
Certificazione energetica
Senza certificazione energetica

Il tuo responsabile

Giuseppe Sottile

Casain a Socio Unico

Tel.:
+39 3913666397
Email:
giuseppe.sottile@casain.casa

Via Cumbo Borgia, 8
98057 Milazzo

La tua richiesta sull'immobile “CASA SINGOLA – MILAZZO (ME)” (Rif-2025-957)

* Campi obbligatori